Service hotline
0086-400-8010-113
Current Location : Home > Products > Heat recovery fresh air fan
● Selected Baosteel fingerprint-resistant steel plate: reliable quality, good mechanical properties, and elegant appearance.
● Patented heat exchange core: higher energy recovery efficiency. (Patent: 201910960256.X, 201720763607.4)
● High-efficiency motor: stable operation and strong power.
● EPS foam volute: light, fireproof, sound-absorbing, and less noise.

1. Indoor temperature display.
2. Three speed adjustment: low, medium and high.
3. Filter replacement reminder.
4. Built-in 485 communication interface.
5. Screen saver backlight, automatically turns off after 60 seconds.

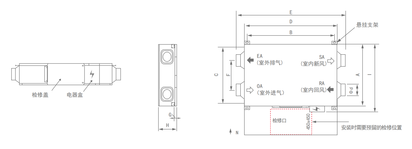
| Model | A | B | C | D | E | F | G | H | I | Φd |
| AHE-15WB | 400 | 500 | 442 | 588 | 776 | 264 | 29 | 242 | 507 | 100 |
| AHE-20WB | 400 | 500 | 442 | 588 | 776 | 264 | 29 | 242 | 507 | 150 |
Model | Voltage (V) | Rated power (W) | Air volume (m3/h) | Static pressure (Pa) | Heat recovery rate (%) | Heat recovery rate (%) | Noise dB(A) | Weight (Kg) | ||||||||||
high | middle | Low | high | middle | Low | high | middle | Low | high | middle | Low | high | middle | Low | ||||
AHE-15WB | 220 | 50 | / | 45 | 150 | / | 110 | 60 | 65 | / | 70 | 68 | / | 72 | 38 | / | 32 | 16 |
AHE-20WB | 220 | 68 | / | 60 | 200 | / | 150 | 60 | 62 | / | 66 | 62 | / | 71 | 39 | / | 32 | 16 |
掃描二維碼添加企業微信