Service hotline
0086-400-8010-113
Current Location : Home > Products > Vertical heat recovery fresh air fan
● Detachable frame type: inner and outer layers are made of high-quality color steel plates, with humanized design and beautiful appearance.
● Full heat exchange core: high efficiency and energy saving, energy recovery rate is better than the national standard.
● Twist-type door buckle: easy to maintain.
● Branded fan: low noise, energy saving, high efficiency and stability.
● Large and medium-sized conference rooms, office buildings, hotel rooms, medical inpatient buildings, and swimming pools.
● Laboratories, computer rooms, mushroom cultivation farms, chess and card rooms, restaurants, shopping malls, and entertainment venues.
● Other places where fresh air is needed.
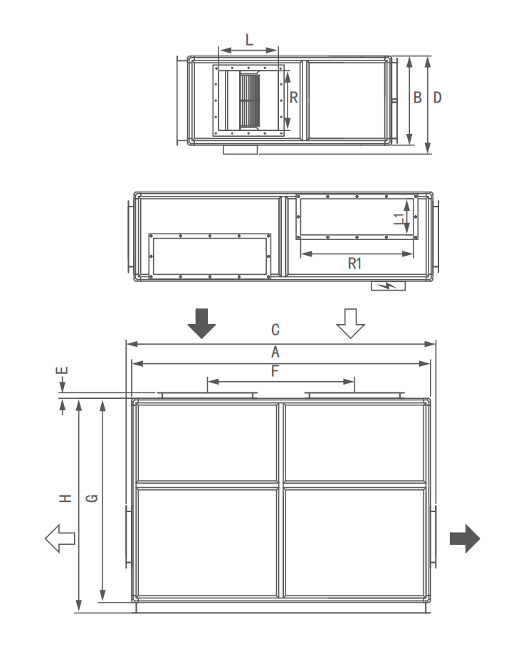
| Model | A | B | C | D | E | F | H | G | LXR | L1xR1 |
| AHE-150L | 950 | 560 | 1070 | 610 | 50 | 475 | 1230 | - | 210x230 | 260x300 |
| AHE-200L | 1145 | 560 | 1245 | 625 | 50 | 746 | 1150 | - | 260x230 | 450x250 |
| AHE-250L | 1200 | 560 | 1300 | 625 | 50 | 746 | 1150 | - | 300x260 | 450x250 |
| AHE-300L | 1300 | 646 | 1420 | 656 | 50 | 644 | 1420 | - | 330x300 | 500x250 |
| AHE-400L | 1450 | 790 | 1550 | 865 | 50 | 725 | 1700 | - | 350x400 | 320x500 |
| AHE-500L | 1650 | 790 | 1750 | 865 | 50 | 825 | 1700 | - | 350x400 | 320x600 |
| AHE-600L | 1850 | 790 | 1950 | 865 | 50 | 925 | 1750 | - | 400x450 | 320x700 |
| AHE-800L | 2250 | 870 | 2350 | 945 | 50 | 1125 | 1810 | 1710 | 400x500 | 320x900 |
| AHE-1000L | 2650 | 920 | 2750 | 995 | 50 | 1325 | 1910 | 1810 | 450x500 | 320x1100 |

model | Voltage | Rated power | Air volume | Static pressure | Heat recovery rate (%) | Heat recovery rate (%) | Noise dB | Weight | ||||||||||
high | middle | Low | high | middle | Low | high | middle | Low | high | middle | Low | high | middle | Low | ||||
AHE-150L | 220 | 520 | 480 | 410 | 1500 | 1350 | 1200 | 180 | 67 | 68 | 69 | 70 | 71 | 72 | 52 | 50 | 48 | - |
AHE-200L | 220 | 800 | 650 | 600 | 2000 | 1800 | 1600 | 200 | 67 | 68 | 69 | 70 | 71 | 72 | 54 | 52 | 50 | - |
AHE-250L | 220 | 1100 | 1000 | 800 | 2500 | 2300 | 2100 | 250 | 67 | 68 | 69 | 70 | 71 | 72 | 56 | 54 | 52 | - |
AHE-300L | 220 | 1400 | 1300 | 1100 | 3000 | 2800 | 2600 | 250 | 67 | 68 | 69 | 70 | 71 | 72 | 60 | 58 | 56 | - |
AHE-400L | 380 | 2200 | - | - | 4000 | - | - | 330 | - | 68 | - | 70 | - | - | 62 | - | - | - |
AHE-500L | 380 | 3000 | - | - | 5000 | - | - | 335 | - | 68 | - | 70 | - | - | 64 | - | - | - |
AHE-600L | 380 | 3600 | - | - | 6000 | - | - | 340 | - | 68 | - | 70 | - | - | 67 | - | - | - |
AHE-800L | 380 | 4400 | - | - | 8000 | - | - | 350 | - | 68 | - | 70 | - | - | 69 | - | - | - |
AHE-1000L | 380 | 6000 | - | - | 10000 | - | - | 350 | - | 68 | - | 70 | - | - | 72 | - | - | - |
掃描二維碼添加企業微信