Service hotline
0086-400-8010-113
Current Location : Home > Products > Capillary net dehumidification fresh air fan
● Tailor-made for capillary network radiation system: while introducing fresh air, completely solve the problem of frosting in the capillary network radiation system.
● Intelligent humidity control: dehumidification can be performed when the cooling radiation system is turned on, or when the cooling radiation system is not turned on.
● Water coil anti-freezing: Intelligent monitoring of coil temperature, automatic alarm when the set temperature is exceeded.
● Internationally renowned brand compressor: safe and stable long-term operation, long life and high compression efficiency.
● Branded DC motor: low energy consumption, high efficiency, stable operation and strong power.
● Strong drainage mode: automatically drains condensed water for safer use.
● Water full protection: When the water full signal is detected, the system will automatically stop working.

● Full touch screen display, more convenient operation and control.
● A combination of indoor carbon dioxide sensors, fresh air temperature, supply air humidity, indoor temperature, and indoor humidity sensors makes it easier to check air quality.
● High-end intelligence: The entire series is equipped with 485 communication interface as standard, which is convenient for network control.
● Regular reminder to change the filter.
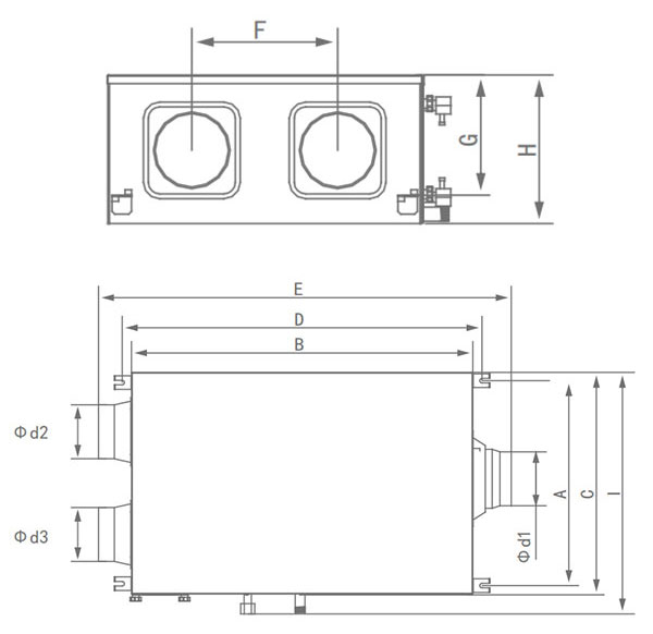
| Model | A | B | C | D | E | F | G | H | l | Φd1 | Φd2 | Φd3 |
| DMXF-30 | 539 | 896 | 585 | 944 | 1083 | 270 | 223 | 275 | 654 | 150 | 150 | 150 |
| DMXF-50 | 688 | 1019 | 654.5 | 675 | 1182 | 334 | 409 | 409 | 770 | 200 | 200 | 200 |

| Model | Power supply | Rated power (W) | Air volume (m3/h) | Dehumidification capacity (L/D) | Static pressure (Pa) | Fresh air volume (m3/h) | Noise dB(A) | Weight(kg) |
| DMXF-30 | 220V/50Hz | 500 | 300 | 110 | 80 | 150 | 45 | 40 |
| DMXF-50 | 220V/50Hz | 1000 | 500 | 160 | 120 | 200 | 50 | 75 |
掃描二維碼添加企業微信